Aan een rustige straat in de geliefde woonwijk Duinpark ligt deze verrassend ruime, uitgebouwde eengezinswoning. De wijk staat bekend om haar groene opzet, brede straten en het ontbreken van doorgaand verkeer, waardoor het een bijzonder prettige en veilige woonomgeving is voor gezinnen. Op korte afstand bevinden zich speelplaatsen, sportvelden, scholen en winkels. Daarnaast ligt de woning op loopafstand van de Groene Long van Noordwijk aan Zee: een langgerekte openbare parkstrook die overgaat in de Noordduinen en uitnodigt tot wandelen, spelen en ontspannen in het groen.
De boulevard, het strand en de zee liggen op circa tien minuten lopen. Daarmee combineert deze woning het rustige karakter van een woonwijk met het dynamische kustleven dat Noordwijk zo aantrekkelijk maakt.
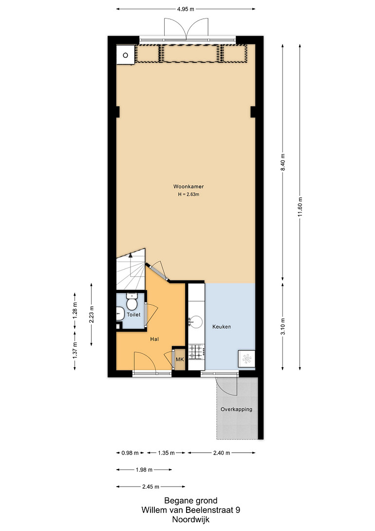
Met een woonoppervlakte van circa 135 m² en een perceel van 137 m² eigen grond biedt deze woning opvallend veel ruimte. De begane grond is over de volledige breedte uitgebouwd, waardoor een zeer royale en lichte woonkamer (ca. 40 m2) is ontstaan. Grote raampartijen en openslaande deuren naar de tuin zorgen voor veel daglicht en een prettige verbinding met buiten. De uitbouw is deels voorzien van een glazen dak, wat extra lichtinval geeft. In de woonkamer bevindt zich daarnaast een sfeervolle houtkachel, ideaal voor de koudere maanden.
De begane grond is voorts afgewerkt met marmeren vloertegels in de woonkamer, keuken en gang. De half open keuken (ca. 7 m2) bevindt zich aan de voorzijde van de woning en biedt ruimte voor een moderne indeling naar eigen wens.
Indeling
Begane grond
Entree met hal, meterkast en toilet. Royale uitgebouwde woonkamer met houtkachel, openslaande deuren naar de achtertuin met veel lichtinval. De keuken bevindt zich aan de voorzijde van de woning.
Eerste verdieping
Overloop met vaste kast en met toegang tot twee slaapkamers waaronder een zeer ruime hoofdslaapkamer aan de achterzijde (voorheen waren dit twee slaapkamers). De badkamer is voorzien van een douchecabine, ligbad, wastafel en tweede toilet. De badkamer is functioneel maar gedateerd en kan naar eigen smaak worden gemoderniseerd. Deze verdieping is voorzien van kunststof kozijnen met dubbele beglazing. De slaapkamer aan de voorzijde is voorzien van een vaste kastenwand en beschikt over een balkon/loggia.
Tweede verdieping
Ruime overloop met opstelplaats voor de Intergas cv-ketel (2020). Daarnaast bevindt zich hier een zeer ruime zolderslaapkamer met kunststof dakkapel, waardoor een volwaardige en lichte extra kamer is ontstaan.
Tuin
De achtertuin biedt een prettige buitenruimte met voldoende privacy en ruimte om te zitten, spelen of buiten te eten. Daarnaast is er aan de voorzijde een ruime stenen berging aanwezig voor fietsen en opslag.
Kenmerken
- Woonoppervlakte ca. 135 m²;
- Perceel 137 m² eigen grond;
- Begane grond over de volledige breedte uitgebouwd;
- Schuifpui en gedeeltelijk glazen dak in de uitbouw;
- Sfeervolle houtkachel in de woonkamer;
- 2 slaapkamers op de eerste verdieping;
- Ruime zolderslaapkamer met kunststof dakkapel;
- Kunststof kozijnen met dubbele beglazing;
- Intergas cv-ketel (2020);
- Begane grond voorzien van marmeren vloertegels;
- Rustige, groene en kindvriendelijke wijk;
- Strand, duinen en boulevard op loopafstand;
- Energielabel B
Een ruime eengezinswoning op een bijzonder prettige locatie in Noordwijk aan Zee, waar rust, groen en het strand samenkomen.
Enkele afbeeldingen kunnen artist impressions zijn en dienen uitsluitend ter illustratie van de mogelijke inrichting en afwerking van de woning.
