Let op! Biedingstermijn tot vrijdag 21 november 12:00!!
Instapklare, uitgebouwde hoekwoning met moderne keuken, airco, kunststof kozijnen en bijna energieneutraal wooncomfort! Op zoek naar een comfortabele, duurzame en direct bewoonbare hoekwoning in Noordwijk?
Aan de Tolhoren 50 staat deze sfeervolle en uitgebouwde hoekwoning met een perceel van maar liefst 184 m² eigen grond. De woning is bijna energieneutraal, beschikt over energielabel B en is de afgelopen jaren volledig gemoderniseerd. Zo is de woning voorzien van kunststof kozijnen en twee kunststof dakkapellen, volledige gevel-, vloer- en dakisolatie, 11 zonnepanelen (2.500 kWh), een nieuwe keuken uit 2020 én nette laminaatvloeren door het gehele huis. De zonnige en brede achtertuin van circa 9 meter diep en 9 meter breed is gunstig gelegen met zon tot circa 20:00 uur in de zomer en beschikt over een kleine veranda en twee bergingen.
De ruime doorzon woon-/eetkamer (ca. 35 m²) is vergroot met een zij-uitbouw van in totaal circa 16 m². In het grootste deel daarvan (ca. 11 m²) bevindt zich de open keuken in L-opstelling, terwijl het achterste deel is ingericht als praktische bijkeuken met veel praktische opbergruimte en een achterdeur naar de tuin. De woonkamer met veel lichtinval is voorzien van een houtkachel die de ruimte in korte tijd heerlijk verwarmd.
Op de eerste en tweede verdieping bevinden zich de 4 slaapkamers (eventueel weer terug te brengen naar 5 slaapkamers) waarvan de royale hoofdslaapkamer is uitgerust met airconditioning en twee dakkapellen. Daarnaast zijn alle trappen gerenoveerd, wat bijdraagt aan het verzorgde en eigentijdse karakter van de woning. Met een gebruiksoppervlakte wonen van 123 m², vier (eventueel vijf) slaapkamers en een zonnige, extra brede achtertuin van circa 9 meter diep en 9 meter breed, voorzien van kleine veranda en twee bergingen, is dit een ideale gezinswoning waar comfort, duurzaamheid en sfeer samenkomen.
De ligging is bovendien perfect: rustig en kindvriendelijk (een speeltuintje bevindt zich vlak achter het huis), nabij het historische centrum van Noordwijk-Binnen en slechts vijf minuten fietsen van strand, boulevard en winkels. Voor wandelliefhebbers is het natuurgebied Coepelduynen op loopafstand gelegen. Uitvalswegen richting de N206 en A44 zorgen voor een uitstekende verbinding met Leiden, Amsterdam, Den Haag en Schiphol en in de directe omgeving bevinden zich een supermarkt en basisschool!
Indeling
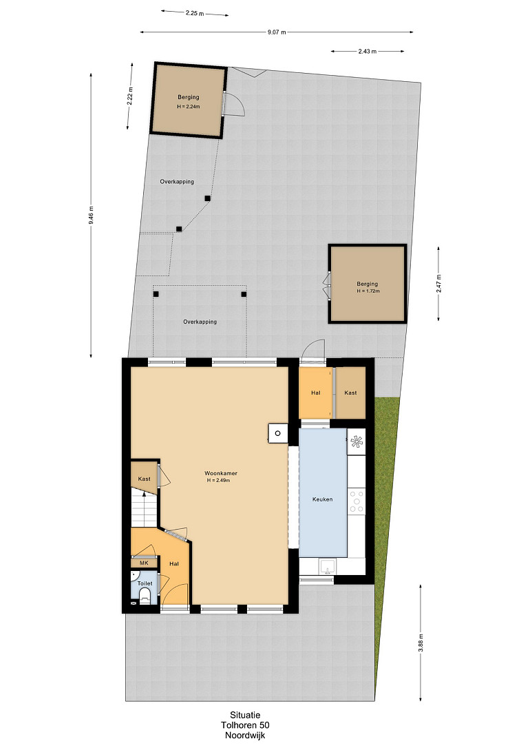
Begane grond
Overdekte entree, hal met garderobe, meterkast en toiletruimte met vrijhangend toilet en fontein.
Lichte en ruime woon-/eetkamer (ca. 35 m2) met houtkachel, trapkast en doorgang naar de zij-uitbouw.
In het voorste gedeelte van de uitbouw bevindt zich de open keuken (ca. 11 m²) in L-opstelling (2020), voorzien van diverse inbouwapparatuur zoals een vaatwasser, oven, gaskookplaat en afzuigkap.
Aansluitend het achterste deel van de uitbouw met de bijkeuken (ca. 5 m²) met veel praktische opbergruimte en directe toegang tot de achtertuin. De gehele begane grond is afgewerkt met een nette laminaatvloer.
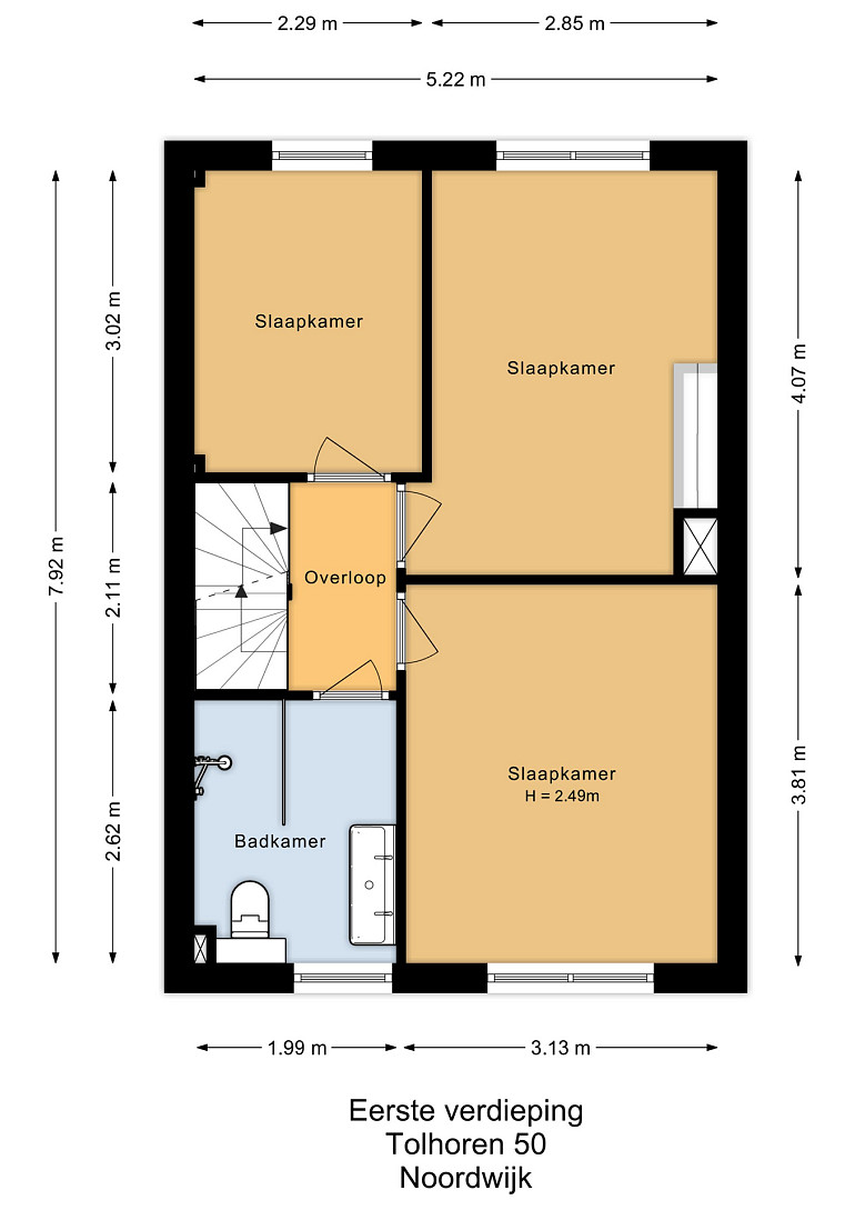
Eerste verdieping
Overloop met toegang tot drie slaapkamers en de badkamer.
Aan de achterzijde bevinden zich een ruime ouderslaapkamer en een tweede (slaap-/hobby)kamer.
De moderne badkamer met vloerverwarming beschikt over een inloopdouche, dubbele wastafel met spiegelkast, tweede toilet, inbouwspots en designradiator.
Aan de voorzijde bevindt zich de derde slaapkamer, met fraai uitzicht over de straat. Ook op deze verdieping ligt een doorlopende laminaatvloer, wat zorgt voor een rustige en verzorgde uitstraling.
Tweede verdieping
Via de gerenoveerde trap bereik je de ruime voorzolder met bergruimte achter de knieschotten en toegang tot de CV-/technische ruimte (Vaillant, 2014) met aansluiting wasmachine- en wasdroger.
Daarnaast bevindt zich hier een zeer royale hoofdslaapkamer met kunststof dakkapellen aan voor- en achterzijde, airconditioning, laminaatvloer en voldoende ruimte voor een werkplek of extra kastruimte.
Oorspronkelijk was deze verdieping opgedeeld in twee slaapkamers; dit is eenvoudig te herstellen indien gewenst.
Bijzonderheden:
- Gebruiksoppervlakte wonen: 123 m²
- Perceeloppervlakte: 184 m² eigen grond
- Energielabel B;
- Volledige isolatie: dak, vloeren en gevels;
- Bijna energieneutraal dankzij 11 zonnepanelen (ca. 2.500 kWh)
- Kunststof kozijnen en dakkapellen (onderhoudsarm)
- Zij-uitbouw ca. 16 m², met open keuken (ca. 11 m²) en bijkeuken (ca. 5 m²)
- Nieuwe keuken (2020)
- Houtkachel in woonkamer
- Rolluiken op een aantal slaapkamers aanwezig;
- Airco in hoofdslaapkamer (2e verdieping)
- Alle vloeren voorzien van een nette laminaatvloer
- Alle trappen gerenoveerd
- Zonnige, brede achtertuin (ca. 9 x 9 m) met zon tot ca. 20:00 uur in de zomer, kleine veranda en twee bergingen
- Rustige, kindvriendelijke ligging nabij centrum, strand, uitvalswegen, supermarkt en basisschool
Kortom: Tolhoren 50 is een woning die alle vakjes aanvinkt – duurzaam, ruim, stijlvol en instapklaar.
Wilt u de woning vrijblijvend bezichtigen? Bel of mail ons gerust; wij nemen graag de tijd voor een uitgebreide rondleiding.
