Vrijstaande instapklare, zeer smaakvol uitgevoerde recreatiebungalow op een rustige randlocatie met een zonnige, beschutte tuin op het zuidwesten en 220 m² eigen grond.
De woning beschikt over een eigen parkeerplaats en biedt veel privacy ten opzichte van andere bungalows op het park.
De bungalow is uitstekend onderhouden en in de afgelopen jaren zowel van binnen als buiten hoogwaardig gemoderniseerd. Zo is de tuin volledig vernieuwd en ontworpen door een architect, met een fraaie indeling en meerdere zitplekken waar u optimaal kunt genieten van de zon en privacy.
Ook het interieur is met oog voor detail en onder architectuur vernieuwd. De woning is volledig geschilderd en voorzien van karakteristieke houten balken tegen het plafond, nieuwe maatwerk deuren met stijlvol beslag en een op maat gemaakte koof rondom de keuken en het eetgedeelte.
De vloer is vernieuwd en alle verlichting is vervangen door hoogwaardige designverlichting van Wever & Ducré, welke te bedienen is via het Casambi-systeem.
De lichte woonkamer met grote raampartijen en openslaande deuren zorgt voor een directe verbinding met de tuin, waardoor binnen en buiten naadloos in elkaar overlopen. De open keuken is modern uitgevoerd en voorzien van diverse inbouwapparatuur, die in 2021 volledig is vernieuwd, inclusief de spoelbak en kraan. In het eetgedeelte bevindt zich een praktische maatwerkbank met comfortabele zitplaatsen en extra bergruimte. De overige meubelen zijn grotendeels van het merk Zuiver, wat bijdraagt aan de moderne en stijlvolle uitstraling van de woning.
De woning beschikt over twee volwaardige slaapkamers en is volledig voorzien van kunststof kozijnen met isolatieglas.
De bungalow leent zich uitstekend voor recreatieve verhuur, mede dankzij de gunstige ligging, zonnige tuin en de aanwezige parkfaciliteiten. Dit maakt het object interessant voor zowel eigen gebruik als investering.
Het verzorgde en kindvriendelijke park “Parc du Soleil” beschikt over diverse voorzieningen, waaronder een overdekt zwembad met apart kinderbad, meerdere binnen- en buitenspeelvoorzieningen en een centraal gelegen familierestaurant “De Beleving”. Hier kunt u terecht voor lunch, diner of een drankje, terwijl kinderen zich vermaken in de aangrenzende speeltuin. Deze combinatie maakt het park bijzonder aantrekkelijk voor gezinnen en draagt bij aan een goede verhuurbaarheid.
Strand, duinen en het centrum van Noordwijk liggen op korte fietsafstand. Ook de uitvalswegen richting de Randstad zijn eenvoudig bereikbaar.
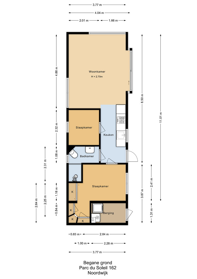
INDELING
Hal met toegang tot de badkamer, voorzien van douche, wastafelmeubel en wandcloset. Twee slaapkamers, waarvan één met vaste kastenwand. Lichte woonkamer met openslaande deuren naar de tuin en een open keuken voorzien van diverse inbouwapparatuur.
TUIN
Fraai aangelegde, omsloten tuin met veel privacy en meerdere zitplekken. Dankzij de ligging op het zuidwesten geniet u hier vrijwel de hele dag van de zon. Inclusief berging met cv-opstelling, aansluiting voor wasmachine en droger en een parkeerplaats op eigen terrein.
BIJZONDERHEDEN
- rustige ligging aan de rand van het park;
- zonnige tuin op het zuidwesten;
- 220 m² eigen grond;
- eigen parkeerplaats;
- 2 slaapkamers;
- kunststof kozijnen met isolatieglas;
- volledig gemoderniseerd en onder architectuur ingericht;
- designverlichting (Wever & Ducré) met Casambi bediening;
- keukenapparatuur vernieuwd in 2021;
- goede verhuurmogelijkheden;
- parkservicebijdrage (2026) ca. € 2.577,89;
- aanvaarding per direct mogelijk
