Bijzonder sfeervol en fraai gelegen, uitgebouwde hoekwoning, gelegen op een rustige en centrale woonlocatie nabij het oude dorpscentrum van Noordwijk - Binnen. De woning verkeert in zeer goede staat en is werkelijk zo te betrekken! Aan de voorzijde bevindt zich een brede voortuin met toegang tot een ruime berging. Er is eventueel ook mogelijkheid om te parkeren op eigen terrein. Aan de achterzijde een verrassende, beschut gelegen en zonnige achtertuin met een groot houten tuinhuis / berging. Het woonhuis is heerlijk comfortabel en voorzien van centrale verwarming, isolerende beglazing, spouwmuurisolatie en vloerisolatie. Bouwjaar 1938. Woonopp. ca. 90 m2.
Begane grond:
Indeling: Entree, meterkast, trapkast met wasmachine-aansluiting, prachtig trappenhuis met bordestrap, doorzon woon/eetkamer (ca. 26 m2) met een parketvloer en een rookkanaal. De woonkamer is licht afgewerkt met radiator-omkastingen. De gesloten woon/eetkeuken (ca. 15 m2) in L-opstelling is voorzien van diverse inbouwapparatuur waaronder een inductie-kookplaat, vaatwasser, afzuigkap en oven. Deze leefkeuken is zeer uitnodigend om lekker lang te tafelen. Vanuit de keuken middels de openslaande deuren toegang tot het terras aan de achterzijde van de woning. Tevens is er binnendoor toegang naar de berging annex bijkeuken aan de voorzijde.
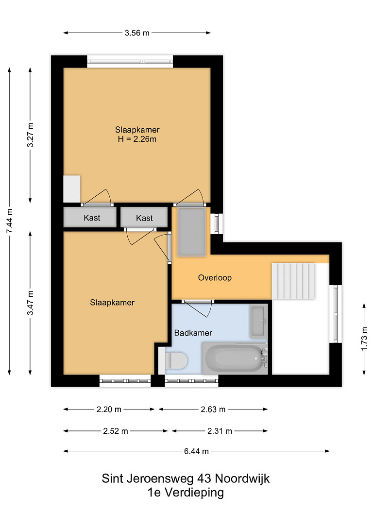
Eerste verdieping:
Op de slaapverdieping bevindt zich een ruime ‘master bedroom’ en een tweede slaapkamer aan de voorzijde. Beide slaapkamers zijn voorzien van inbouwkasten. De moderne badkamer is voorzien van een grote wastafel, een ligbad met douchefunctie en een zwevend toilet. Een derde ruime slaapkamer is eventueel nog te realiseren boven de woon/eetkeuken.
De bevloerde bergzolder is bereikbaar via een vlizotrap, alwaar de cv installatie (Intergas 2021) is geplaatst.
Een goed onderhouden woonhuis met scholen, sportvelden, bibliotheek en het historische centrum van Noordwijk Binnen met divers winkelaanbod op loopafstand. Op fietsafstand bevinden zich zee, strand, duinen, meerdere winkels en horeca gelegenheden. Parkeren kan eventueel op eigen terrein en voor de deur (gratis), de uitvalswegen zijn binnen enkele minuten te bereiken met goede verbindingen naar omliggende steden en de luchthaven Schiphol.
Bijzonderheden:
o Sfeervolle ruime leefkeuken;
o Parkeren op eigen terrein mogelijk;
o Winkels en horeca op loop- en fietsafstand;
o Volledige isolatie;
o Energielabel C;
o Dubbele berging;
o Instapklaar!
