Ontdek dit sfeervolle, recentelijk verbouwde en moderne appartement aan de Coremolen 5M5 in Noordwijkerhout. Gelegen in het hart van het gezellige dorpscentrum, biedt deze op de begane grond gelegen maisonette-woning een perfecte mix van comfort, stijl en een centrale locatie. Ideaal voor starters, alleenstaanden of stellen die willen genieten van alles wat Noordwijkerhout te bieden heeft. Dit appartement van ca. 42 m2 heeft een plafondhoogte van maar liefst 4 meter met een ingebouwde entresol met vaste trap. Op de entresol zijn een studieruimte en slaapruimte gecreëerd wat een extra gebruiksoppervlakte van ca. 30 m2 oplevert. De woonkamer met openslaande deuren en een frans balkon ligt op het zuiden van het Coremolen-plein. De woonkamer en keuken zijn voorzien van een vloerverwarming met extra aansluiting om deze uit te breiden naar de badkamervloer.
Kenmerken van het appartement:
Ligging: Gelegen op een gezellige en centrale locatie. Alle winkels zijn binnen handbereik. Het appartement ligt aan een rustig gedeelte van het Coremolen-plein zonder directe voorbijgangers.
Woonoppervlakte: Compact en efficiënt ingedeeld, perfect voor comfortabel wonen.
Voorzieningen: Moderne afwerking met oog voor detail.
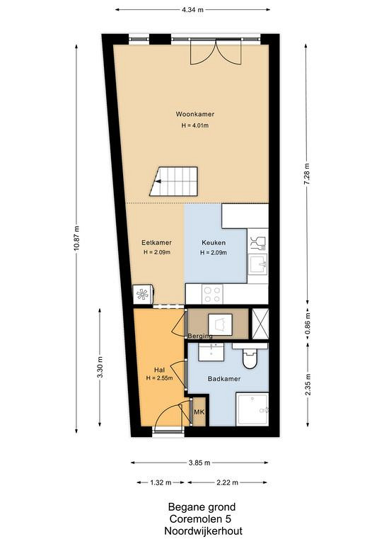
Indeling
Entree: hal met meterkast en intercominstallatie
Technische ruimte: garderobe, cv-ketel, vloerverwarmingsinstallatie en wasmachine aansluiting
Woon-/eetkamer: Lichte en open leefruimte met grote ramen en openslaande deuren voor een prettige sfeer en een vaste trap naar de entresol. De woonkamer heeft een plafondhoogte van 4 meter waardoor deze extra ruim is.
Keuken (vernieuwd in 2023): Moderne keuken voorzien van enige inbouwapparatuur (oven, inductie kookplaat en afzuigkap met filter) met voldoende werkruimte en extra stopcontacten
Badkamer: Licht en modern, compleet met douchecabine, badkamermeubel, toilet en wasmachine-aansluiting;
Entresol voorste gedeelte: Ruim nieuw toegevoegde gebruikers/leefruimte voor een slaap- en of werkplek.
Entresol achterste gedeelte: Praktische en rustige ruimte, perfect voor een goede nachtrust en voldoende opbergruimte (géén stahoogte)
Voorzien van een nieuwe pvc vloer op begane grond en nieuwe pvc visgraat vloer op entresol, voorzien van nieuwe hoge kwaliteit vitrage en gordijnen met trekkoord en een mechanisch ventilatiesysteem.
Bijzonderheden:
- Algemene entree appartementengebouw met lift en intercominstallatie;
- Direct van binnenuit toegankelijke parkeerplaats(huur) beschikbaar in de parkeerkelder;
- Gebruik van gemeenschappelijke fietsenstalling;
- Nabij diverse winkels, supermarkten en gezellige horecagelegenheden;
- Voldoende (gratis) parkeergelegenheid in de omgeving;
- Uitstekende verbinding met het openbaar vervoer en snelwegen richting Leiden, Den Haag en Amsterdam;
- Huur 2e parkeerplaats (optioneel): € 90 per maand.
Centrale ligging
Coremolen 5M5 biedt het beste van twee werelden: een rustige woonomgeving in het charmante Noordwijkerhout en tegelijkertijd de nabijheid van natuur, strand en duinen. Binnen enkele minuten ben je bij het Oosterduinse meer, de uitgestrekte bollenvelden en de kust.
Wil je comfortabel wonen op een centrale locatie? Plan dan vandaag nog een bezichtiging en laat je verrassen door dit mooie appartement!
